Plan STUDIO / 1LDK / 2LDK
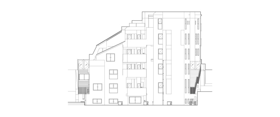
ELEVATION DESIGN
※図面と現況が異なる場合は、現況を優先させていただきます。
PENTHOUSE
Penthouse
T-TYPE
1LDK
4F-5F 501
専有面積 67.09 ㎡
バルコニー面積
7.39
㎡
ルーフバルコニー面積
18.53
㎡
※図面と現況が異なる場合は、現況を優先させていただきます。
Penthouse
S-TYPE
1LDK
4F-5F 502
専有面積 62.47 ㎡
バルコニー面積
3.43
㎡
ルーフバルコニー面積
7.47
㎡
※図面と現況が異なる場合は、現況を優先させていただきます。
PLAN / B1-4F
-
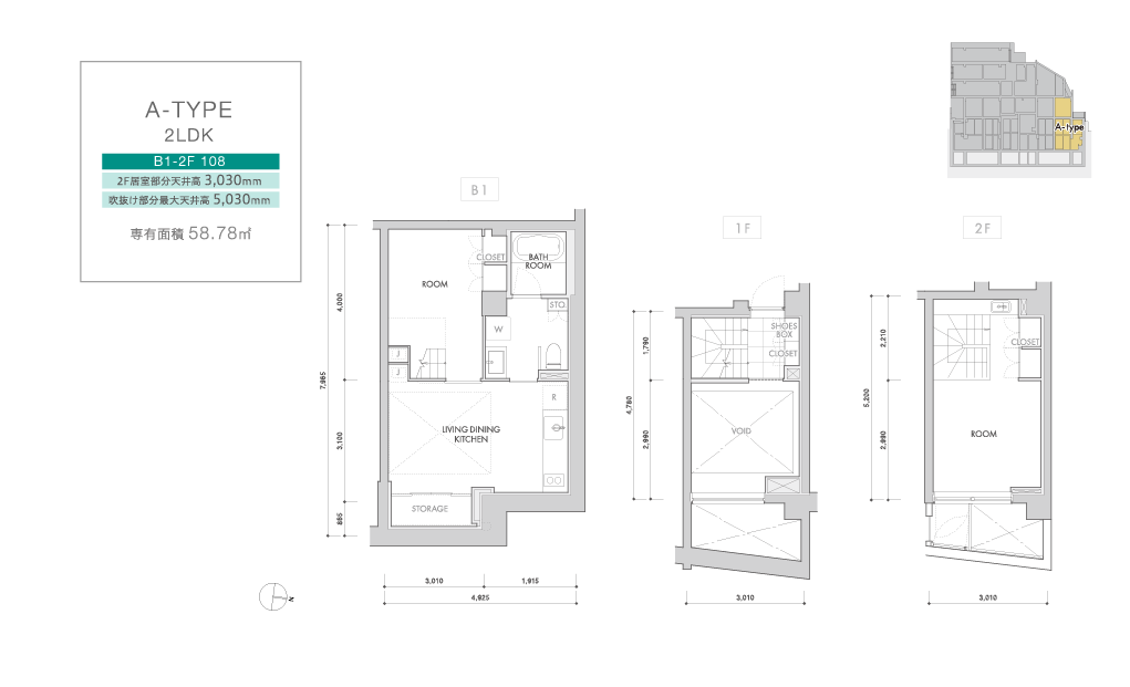
A-TYPE
2LDK
B1-2F 108
2F居室部分天井高 3,030mm
吹抜け部分最大天井高 5,030mm
専有面積 58.78 ㎡
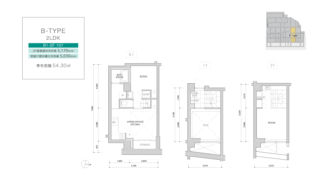
-
B-TYPE
2LDK
B1-2F 107
2F居室部分天井高 3,170mm
吹抜け部分最大天井高 5,030mm
専有面積 54.30 ㎡
-
C-TYPE
1LDK
B1-2F 106
2F居室部分天井高 3,170mm
吹抜け部分最大天井高 5,030mm
専有面積 41.98 ㎡
-
D-TYPE
1LDK
B1-2F 105
2F居室部分天井高 3,170mm
吹抜け部分最大天井高 5,030mm
専有面積 42.14 ㎡
-
E-TYPE
2LDK
B1-2F 104
2F居室部分天井高 3,170mm
吹抜け部分最大天井高 5,030mm
専有面積 49.70 ㎡
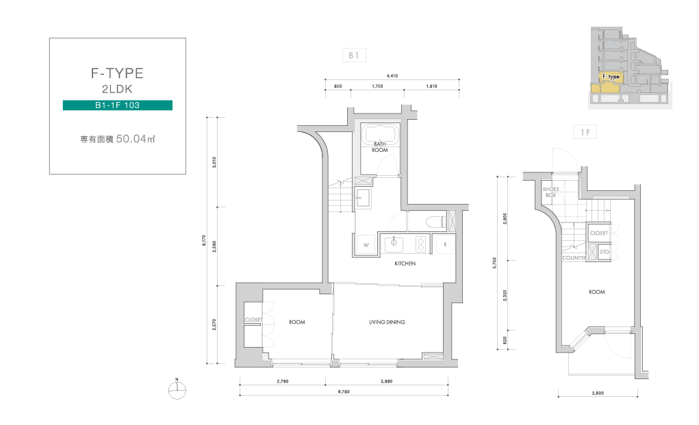
-
F-TYPE
2LDK
B1-1F 103
専有面積 50.04 ㎡
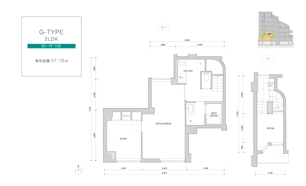
-
G-TYPE
2LDK
B1-1F 102
専有面積 57.18 ㎡
-
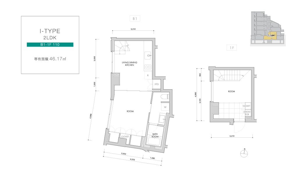
I-TYPE
2LDK
B1-1F 110
専有面積 46.17 ㎡
-
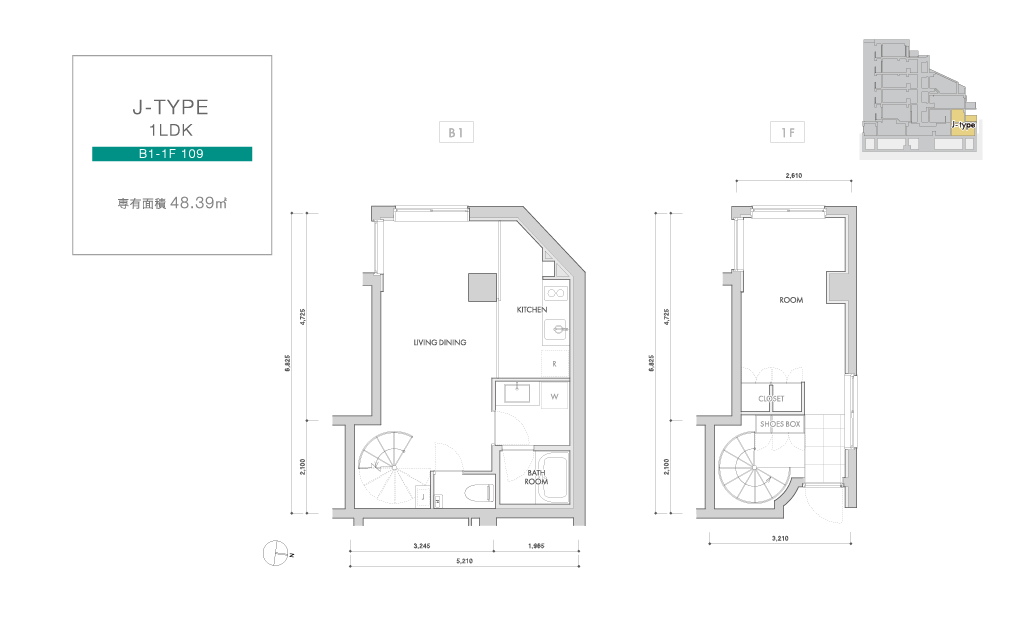
J-TYPE
1LDK
B1-1F 109
専有面積 48.39 ㎡
-
K-TYPE
1LDK
2F 202 / 3F 302
専有面積 37.09 ㎡
バルコニー面積 7.39 ㎡
-
K’-TYPE
1LDK
4F 402
専有面積 33.28 ㎡
バルコニー面積 7.39 ㎡
-
L-TYPE
1LDK
1F 101 / 2F 201
3F 301 / 4F 401
天井高最大 2,970mm
専有面積 36.55 ㎡
-
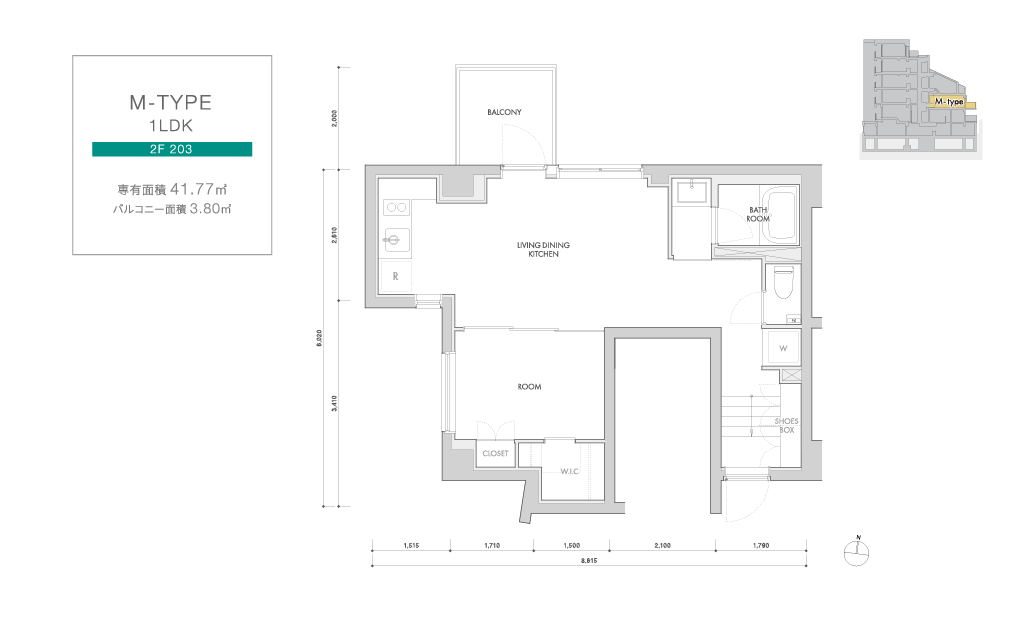
M-TYPE
1LDK
2F 203
専有面積 41.77 ㎡
バルコニー面積 3.80 ㎡
-
M’-TYPE
STUDIO
3F 306
天井高最大 3,100mm
専有面積 25.01 ㎡
バルコニー面積 13.36 ㎡
-
N-TYPE
STUDIO
3F 305
天井高最大 4,880mm
専有面積 26.42 ㎡
バルコニー1面積 6.26 ㎡
バルコニー2面積 5.74 ㎡
-
O-TYPE
1LDK
3F 304
天井高最大 5,085mm
専有面積 33.35 ㎡
バルコニー面積 4.38 ㎡
-
P-TYPE
1LDK
3F 303
専有面積 44.19 ㎡
バルコニー面積 3.44 ㎡
-
Q-TYPE
STUDIO
4F 404
専有面積 25.20 ㎡
バルコニー面積 6.04 ㎡
-
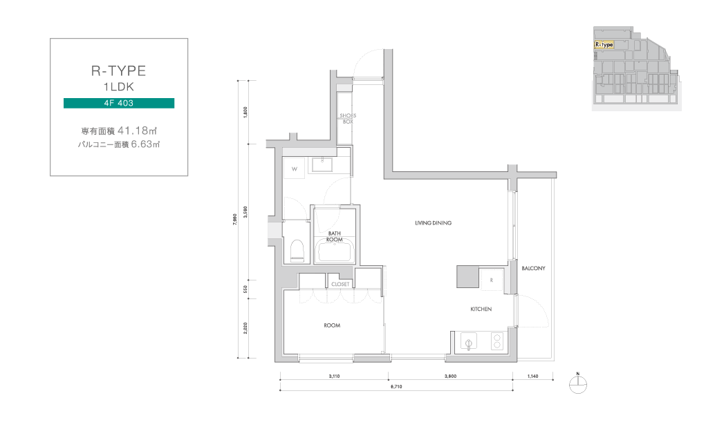
R-TYPE
1LDK
4F 403
専有面積 41.18 ㎡
バルコニー面積 6.63 ㎡
CROSS SECTION