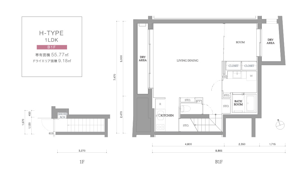
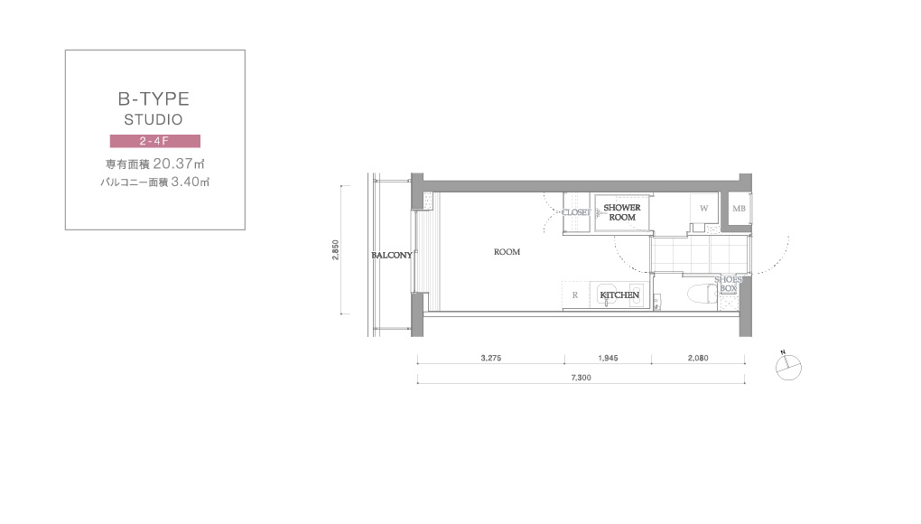
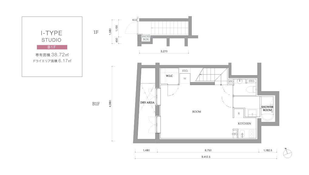
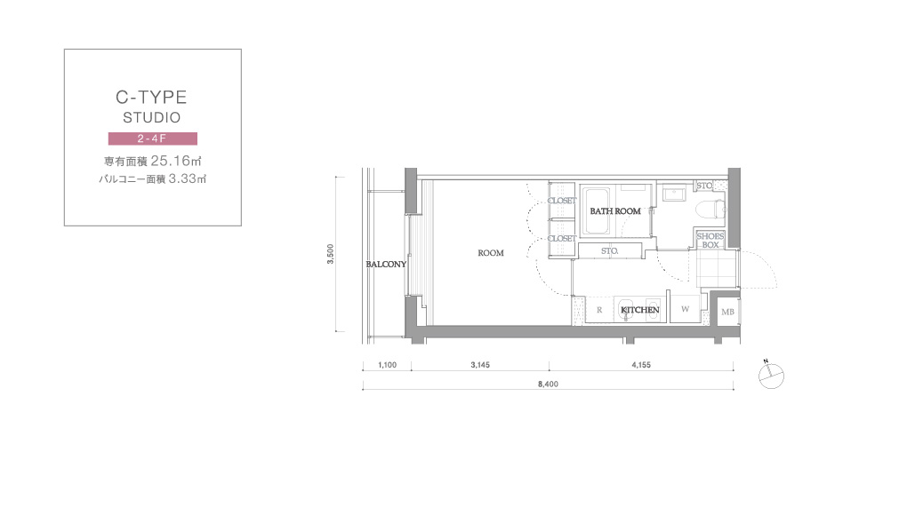
Plan STUDIO・1LDK・1LDK+DEN

ELEVATION DESIGN

西側立面図 西側立面図
西側立面図
南側立面図 南側立面図
南側立面図
東側立面図 東側立面図
東側立面図
北側立面図 北側立面図
北側立面図

※図面と現況が異なる場合は、現況を優先させていただきます。

PLAN

Premium & Penthouse

Premium & Penthouse

D’-TYPE
1LDK

5F

専有面積 37.26

バルコニー面積 7.24

上品さとモダンが調和する空間。キッチンや洗面には空間を際立たせる大理石調のタイルを使用しています。開放的な対面式キッチンでリビングとの一体感を演出。LDKとベッドルームの中間スペースは書斎としても利用でき、リモートワークにも対応したプランニングです。

D’-TYPE

Premium & Penthouse

E-TYPE
1LDK

5-6F

専有面積 46.35

バルコニー面積 5F/28.36
バルコニー面積 6F/13.19

アウトドア空間を取り入れた贅沢な空間。三面開口のワイドLDKの先に続く大型ルーフバルコニーでは、植栽を見ながら四季の変化を楽しむことができます。(5F E-Typeのみ)玄関からLDにかけて設けた約5mのロングカウンター収納、ベッドルームから直接バスルーム・洗面へアクセスが可能な導線などプライバシー性と快適性を高めたプランニングです。

E-TYPE
E-TYPE

Premium & Penthouse

F-TYPE
1LDK+DEN

7F

専有面積 61.26

ルーフバルコニー面積 19.74
サービスバルコニー面積 6.99

光と風を感じながら都会での暮らしを愉しむ空間。天井高最大約4.5mのLDKから目に入る広々としたルーフトップバルコニーが内と外を緩やかに繋ぎます。ラグジュアリーホテルの佇まいを感じさせるガラス張りのバスルーム、2ボールの洗面はワンランク上の暮らしを叶えます。プライベート、パブリックと動線をしっかりと分けながらも繋がりを感じられるプランニングです。

F-TYPE
F-TYPE

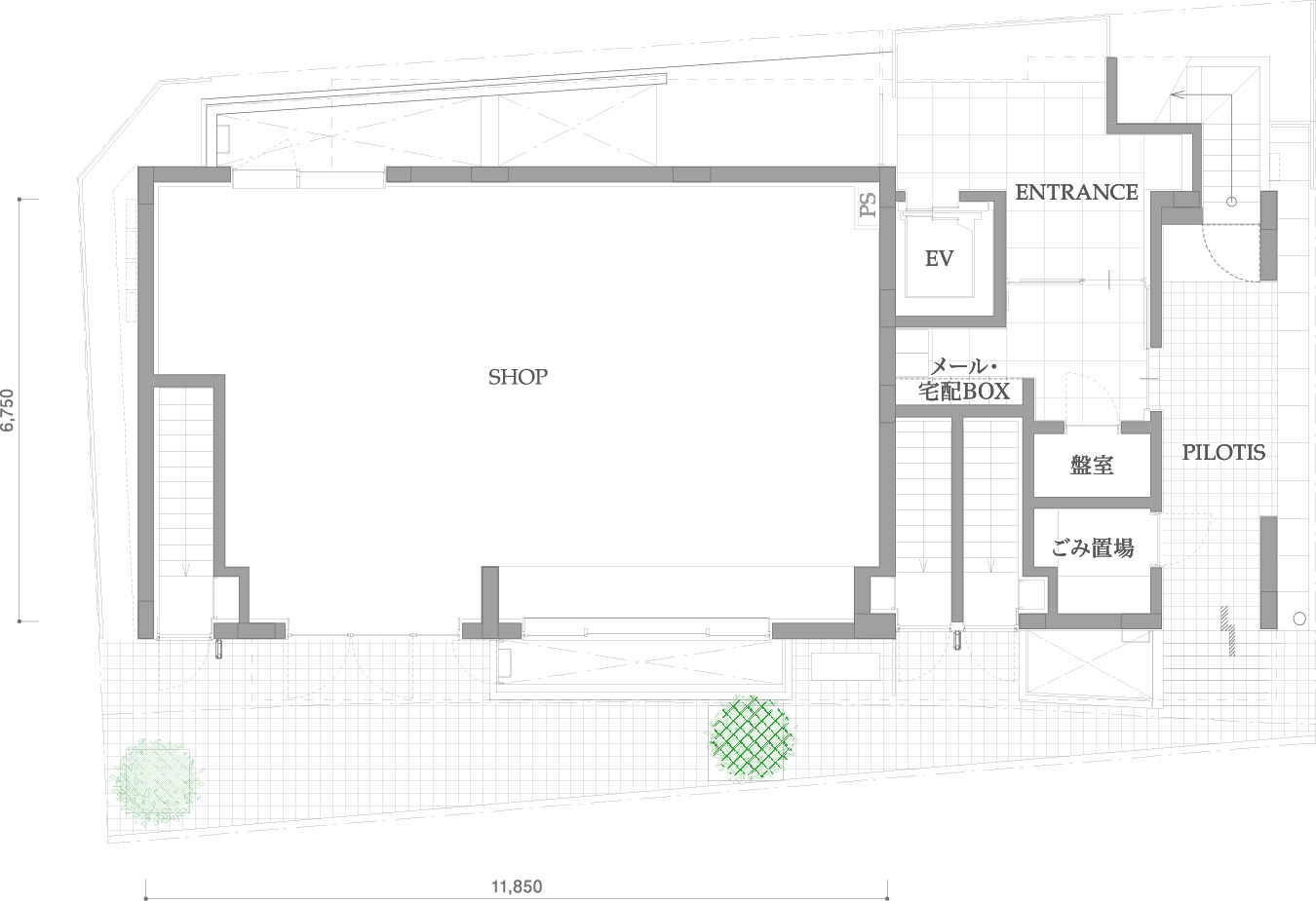
GROUND FLOOR

ELEVATION DESIGN

※図面と現況が異なる場合は、現況を優先させていただきます。

PAGE TOP