Design Approach / Entrance / InnerPlan

APPEARANCE

コンクリート打ち放しや漆喰調の壁面、ガラスなどを組み合わせた外観。モノトーンを基調とした中に散りばめられる木の温もりが、近景としての深みや遠景としての趣を生み出します。バルコニーが水平に重なる佇まいに浮かぶ十字型のアイコンが、高輪に新たな品格を添えるデザインです。

APPEARANCE APPEARANCE

ENTRANCE

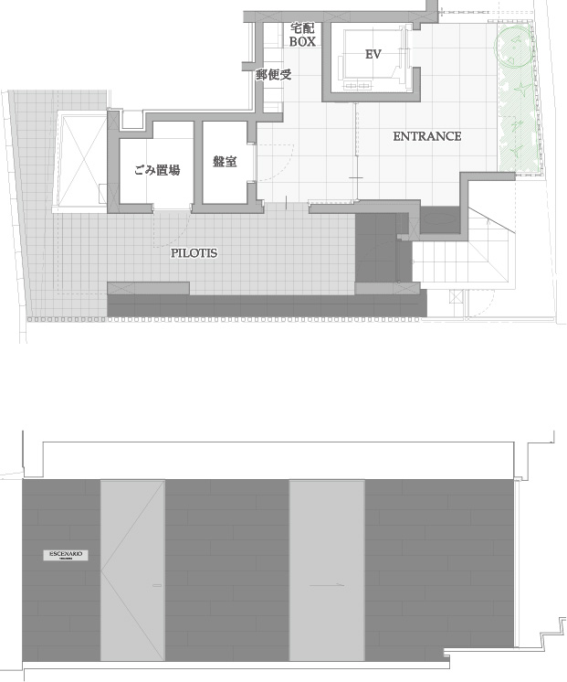
住まいの序章となるアプローチは、落ち着いた色の石調タイルと木格子が囲む路地空間です。街の凛とした品位を受け継ぎつつ、扉の先には雅やかな白色の床を設えたエントランスホールが広がります。私邸へ向かう気持ちを高める色彩演出や光や風を感じさせる植栽が、住まう人を温かく迎え入れる迎賓の場です。

ENTRANCE
ENTRANCE

INNER PLAN

天井一杯にまで伸びる開口が、オープンな眺望と潤沢な光と風を取り込む室内。そして、植栽やロングベンチを配したバルコニーと居室が一体となる開放的なプランニングと共に、インテリアが静寂の趣を生みだします。壁やフローリングをはじめ、ドアや洗面台までもがグレイッシュな色調で統一。落ち着いた気品が、寛ぎのひとときへと優しく寄り添います。

INNER PLAN
E-TYPE
INNER PLAN
H-TYPE
PAGE TOP