Plan STUDIO / 1LDK
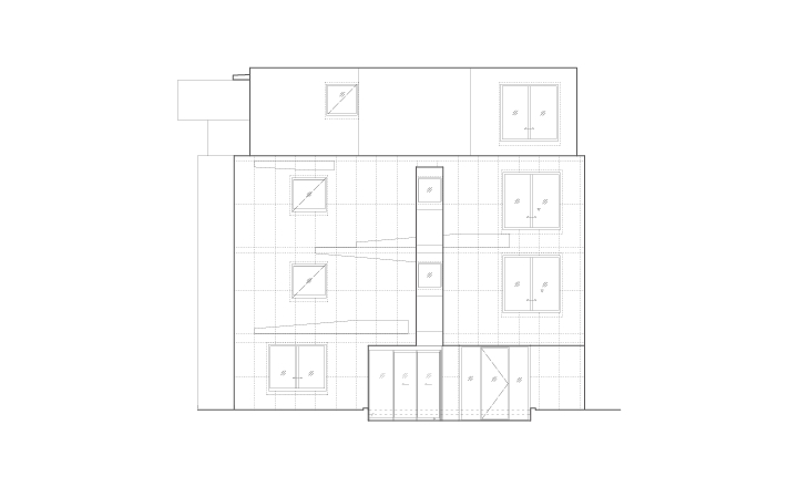
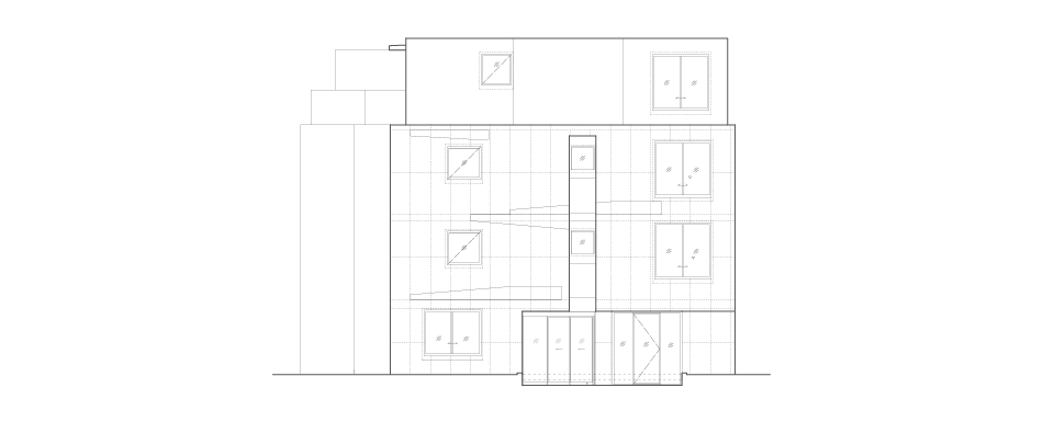
ELEVATION DESIGN
※図面と現況が異なる場合は、現況を優先させていただきます。
PLAN / B1-4F
-
OFFICE
1F 001
専有面積 41.29 ㎡
-
A-TYPE
1LDK2F 201 / 3F 301
専有面積 38.22 ㎡
-
B-TYPE
1LDK2F 202 / 3F 302
専有面積 37.62 ㎡
-
C-TYPE
STUDIO2F 203 / 3F 303
専有面積 25.59 ㎡
-
D-TYPE
1LDK4F 401
専有面積 44.77 ㎡
バルコニー面積 5.10 ㎡
-
E-TYPE
1LDK4F 402
専有面積 38.31 ㎡
バルコニー面積 3.44 ㎡
-
F-TYPE
1LDKB1-1F 103
専有面積 50.08 ㎡
-
G-TYPE
1LDKB1-1F 102
専有面積 50.08 ㎡
-
H-TYPE
1LDKB1-1F 101
専有面積 47.19 ㎡