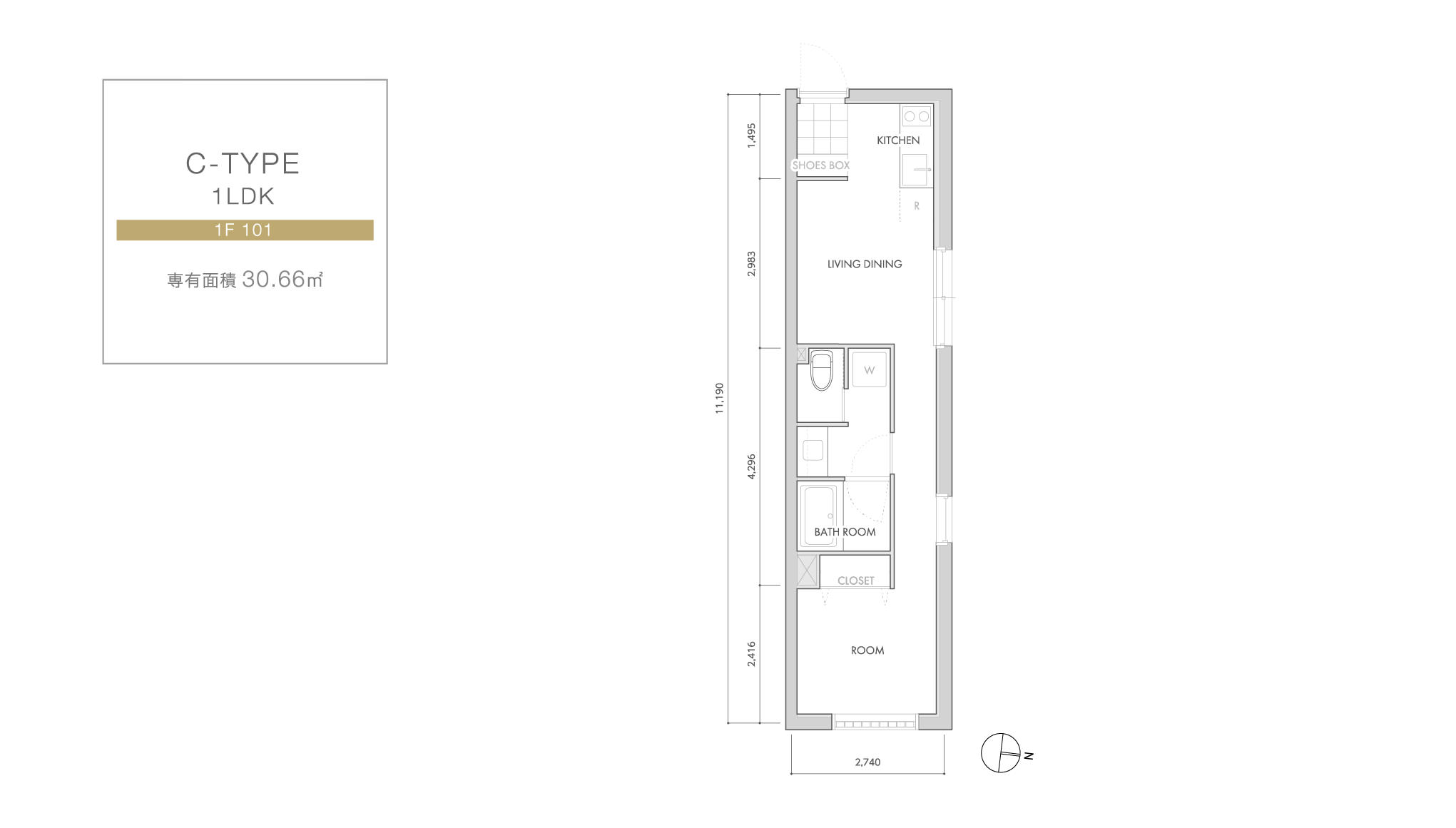
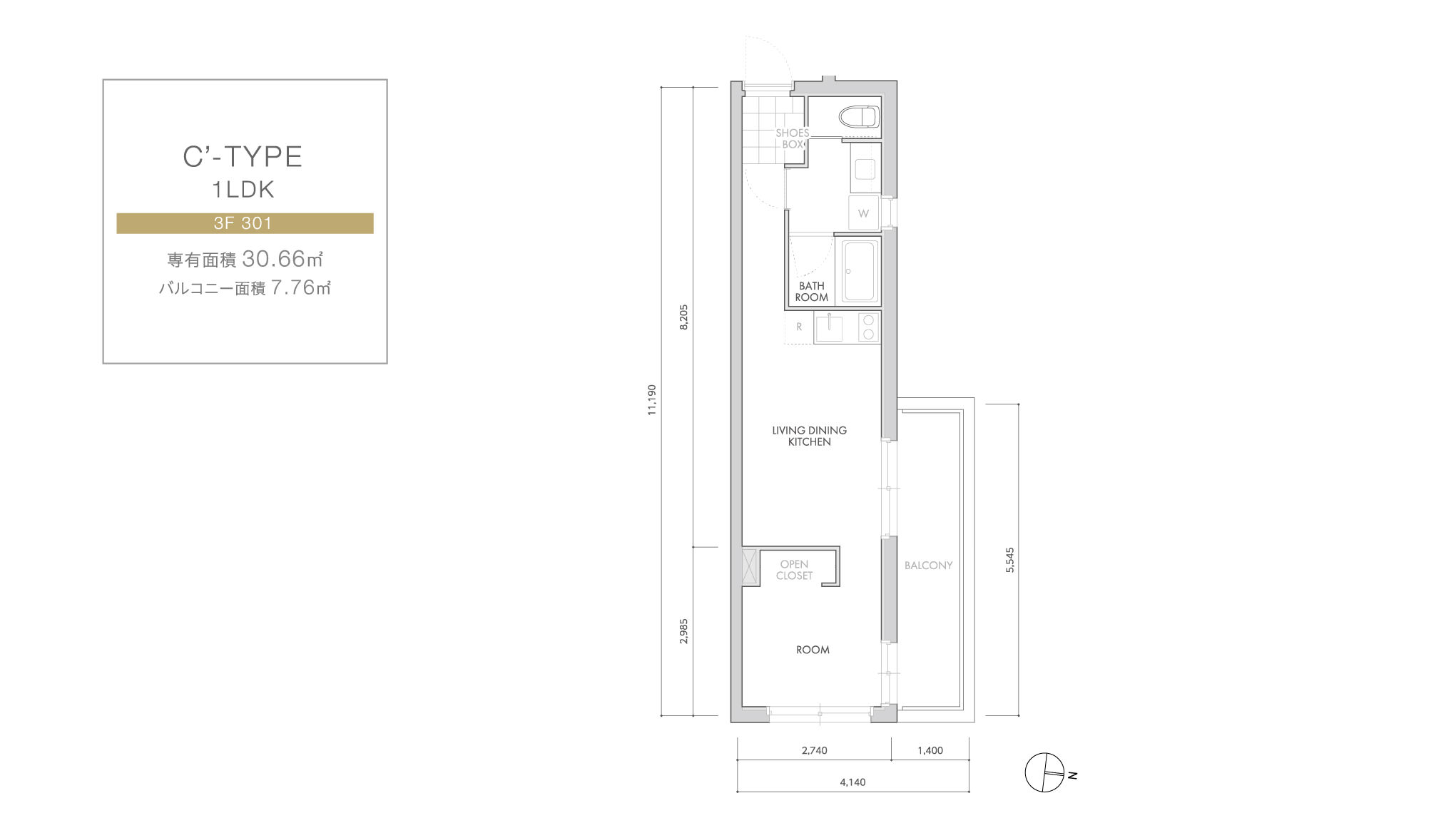
Plan 1LDK
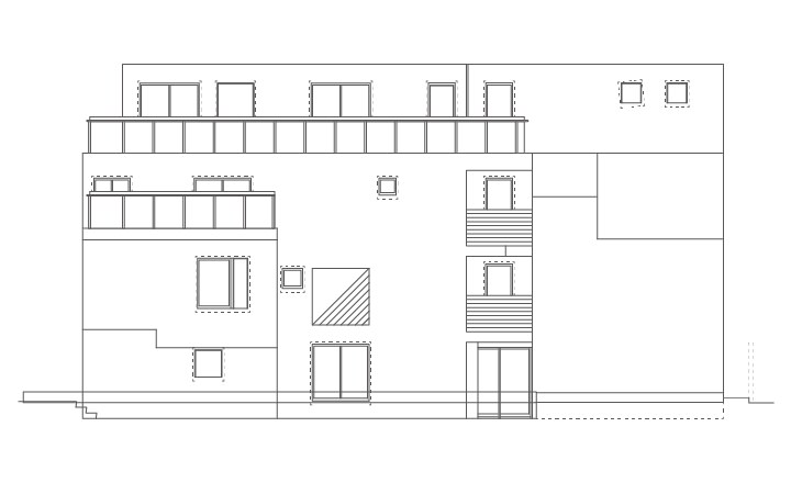
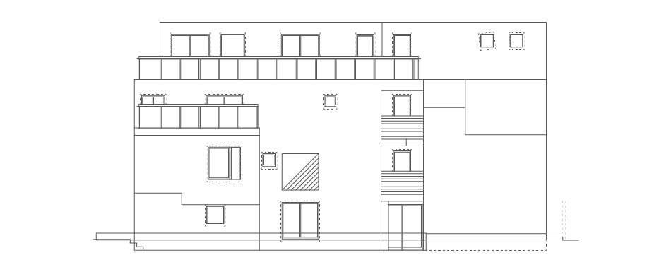
ELEVATION DESIGN
※図面と現況が異なる場合は、現況を優先させていただきます。
PLAN
1F - 4F
-
A-TYPE
1LDK1F 103 ・ 2F 203
専有面積 40.00 ㎡
-
B-TYPE
1LDK1F 102 ・ 2F 202 ・ 3F 302
専有面積 35.80 ㎡
-
C-TYPE
1LDK1F 101
専有面積 30.66 ㎡
-
C’-TYPE
1LDK3F 301
専有面積 30.66 ㎡ バルコニー面積 7.76 ㎡
-
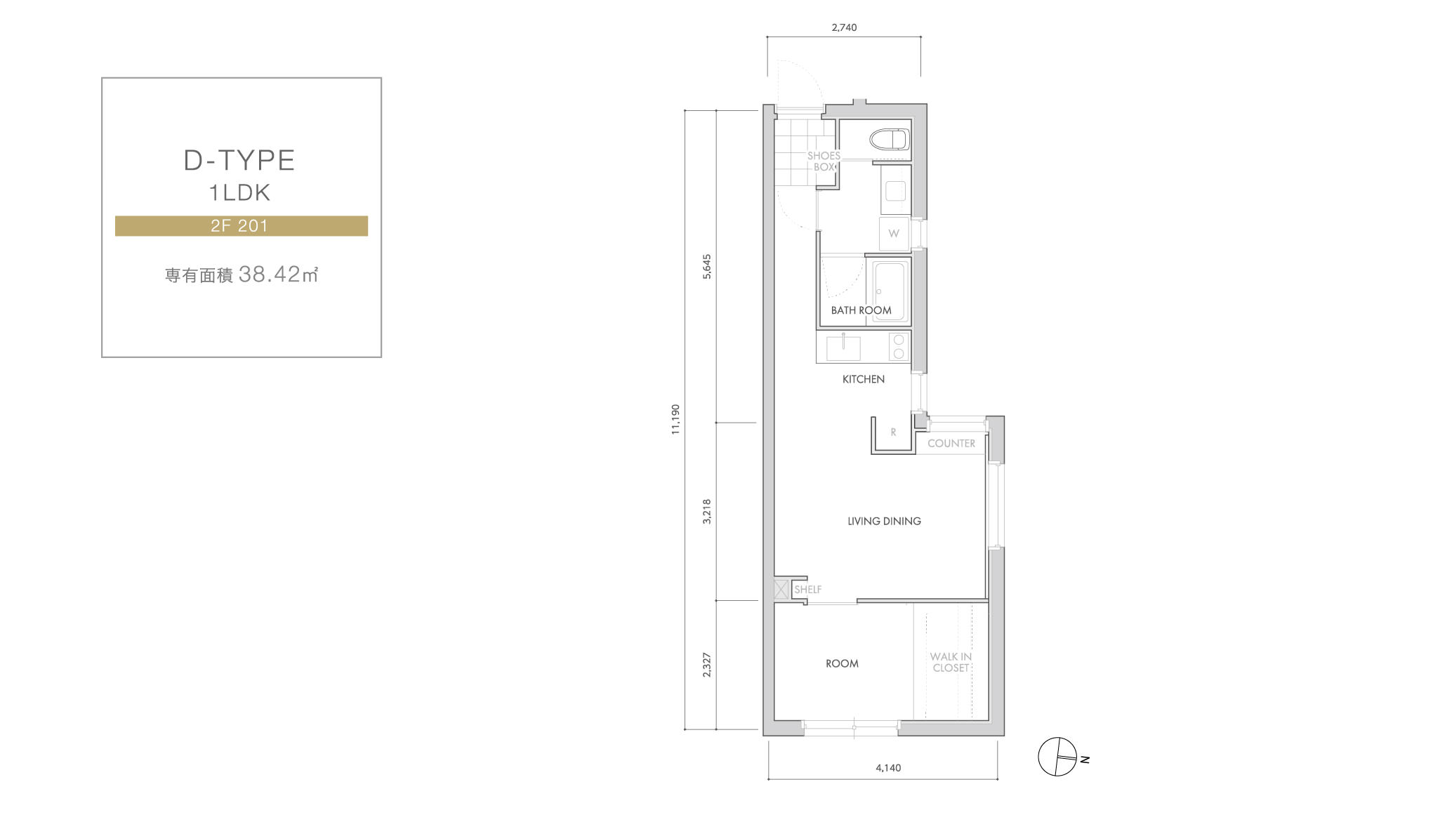
D-TYPE
1LDK2F 201
専有面積 38.42 ㎡
-
E-TYPE
1LDK3F-4F 303
専有面積 41.65 ㎡ バルコニー面積 2.44㎡・7.08㎡
-
P-TYPE
1LDK4F 401
専有面積 40.00 ㎡ バルコニー面積 22.33 ㎡